Facebook pixel head Westblaak 5, Rotterdam | Deze locatie huren?

Westblaak 5

Omschrijving

Algemeen
Te huur tot en met december 2024!
Diverse kantoorunits gelegen op de 5e en 6e verdieping vanaf 123 m² in het kantoorgebouw “De Blaker”, op een unieke zichtlocatie in het centrum van Rotterdam. Het gebouw “De Blaker” ligt op de kruising van de Westblaak en de Coolsingel aldus midden in het zakelijk- en winkelhart van Rotterdam direct tegenover metrostation Beurs

Locatiegegevens
De nabijgelegen Maasboulevard heeft een directe verbinding met rijkswegen A15/A16 alsmede de oevervindingen Erasmusbrug en Maastunnel. Via de Coolsingel en de Schiekade is er een aansluiting met de A20.

Het kantoorpand ligt direct aan Metrostation “Beurs/Churchillplein” waardoor het pand perfect te bereiken is met het openbaar vervoer. Dit metrostation is het kruispunt van de noord/zuid en oost/west lijn. Het centraal station is hierdoor binnen 5 minuten te bereiken. Op loopafstand bevinden zich diverse tram- en buslijnen. Voor parkeren kan men terecht aan de overzijde van de Westblaak, in de APCOA garage aan de Hartmanstraat.

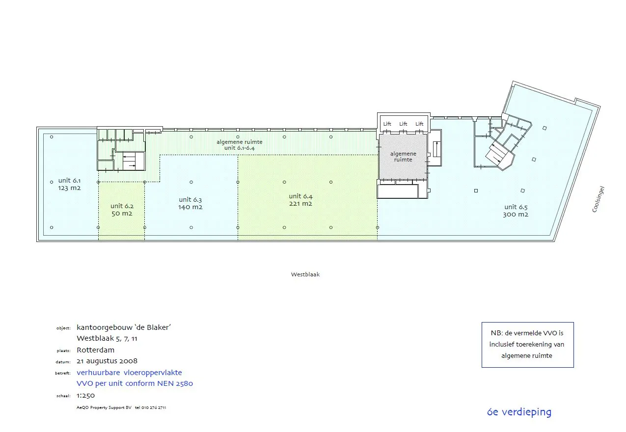
Indeling
Voor verhuur is totaal circa 923 m² beschikbaar, verdeeld over:
Verdieping Unit Metrage
5e verdieping unit 5.1 439 m²
6e verdieping unit 6.1 123 m²
unit 6.3 140 m²
unit 6.4 221 m²

Parkeren
Aan de Karel Doormanstraat op ca. 380 meter afstand bevindt zich Interparking Lijnbaan en aan de Hartmanstraat op ca. 300 meter afstand is APCOA Parking Westblaak gelegen. Dit zijn 2 openbare parkeergarages waar parkeerplaatsen op abonnementsbasis voor verhuur beschikbaar zijn.

Huurprijs
De huurprijs bedraagt € 125,- per m² per jaar, exclusief b.t.w. en servicekosten.

Huurtermijn
Verhuur uiterlijk tot en met december 2024.

Datum van oplevering
Per direct.

Servicekosten
Het voorschot servicekosten bedraagt thans € 65,- per m² per jaar* te vermeerderen met de wettelijk verschuldigde omzetbelasting ten behoeve van de navolgende leveringen en diensten:

Leveringen en diensten ten behoeve van gas, water en licht ten behoeve van de algemene en gehuurde ruimten:
• levering van warmte (stadsverwarming);
• levering van water;
• levering van elektra.

Leveringen en diensten ten behoeve van schoonmaak en hygiëne:
• schoonmaak algemene ruimten;
• glasbewassing buitenzijde en gevelreiniging;
• ongedierte bestrijding;
• vuilafvoer.

Leveringen en diensten ten behoeve van onderhoud:
• dakwerken;
• automatische deurinstallaties;
• keuring liften;
• brandblusapparatuur;
• brandmeldcentrale;
• zonweringsinstallaties;
• werktuigbouwkundige en elektrotechnische installaties;
• (nood)verlichting.

Overige leveringen en diensten:
• glasverzekering;
• verontreinigingsheffing;
• belastingen en andere diverse kosten;
• 5% administratiekosten over de hiervoor vermelde levering en diensten te verhogen met de wettelijke verschuldigde omzetbelasting.

Het voorschot servicekosten gaat uit van normaal kantoorgebruik (8 uur per dag).
De servicekosten worden geheven op basis van jaarlijkse nacalculatie.

Staat van oplevering:
In de huidige staat, onder andere voorzien van:
• systeemplafond met geïntegreerde verlichtingsarmaturen;
• videofooninstallatie;
• mechanische ventilatie;
• verwarming door middel van radiatoren;
• toiletgroep, dames en heren gescheiden;
• lift;
• pantry;
• huidige vloerbedekking en scheidingswanden.

Huurgarantie
Huurder dient aan verhuurder een onherroepelijke ROZ-bankgarantie te stellen of waarborgsom te storten ter grootte van drie maanden huur, servicekosten alsmede de hierover verschuldigde omzetbelasting.

Huurprijsherziening
Jaarlijks, op basis van de wijziging van het prijsindexcijfer volgens de Consumentenprijsindex (CPI) reeks CPI-Alle Huishoudens (2015=100), gepubliceerd door het Centraal Bureau voor de Statistiek (CBS).

Huurovereenkomst:
Huurovereenkomst op basis van het standaard model van de Raad voor Onroerende Zaken (ROZ), versie februari 2015, met de daarbij behorende algemene bepalingen.

Algemeen
Deze vrijblijvende en globale informatie met betrekking tot voormeld onroerend goed is met zorg samengesteld, maar voor de juistheid ervan kan door De Mik Bedrijfshuisvesting B.V. geen aansprakelijkheid worden aanvaard, noch kan aan de vermelde gegevens enig recht worden ontleend. Nadrukkelijk is vermeld dat deze informatieverstrekking niet als een aanbieding of offerte mag worden beschouwd.

Lees meer Lees meer

Kenmerken

Algemeen

Huurprijs € 125 /m2/jaar

Servicekosten € 65 /m2/jaar

Aanvaarding Direct

Bouw

Hoofdfunctie Kantoorruimte

Oppervlakten

Oppervlakte 923 m2 (in units vanaf 123 m2)

Indeling

Aantal bouwlagen 2 bouwlagen

Plan een bezichtiging of stel een vraag