Facebook pixel head Ptolemeauslaan , Utrecht | Deze locatie huren?

Ptolemeauslaan

Omschrijving

ALGEMEEN
Op kantorenpark Papendorp worden de Lakeview Offices gerealiseerd. Dit nieuwe en innovatieve project biedt 12 kantoorappartementen. Je kunt je eigen kantoorappartement kiezen en aanpassen aan je eigen specifieke wensen en behoeften. De Lakeview Offices zijn gelegen aan de Ptomoleuslaan te Utrecht en hebben een prachtig uitzicht op het water.

Het unieke project is weggelegd voor MKB ondernemers die duurzaamheid omarmen, toe zijn aan een “eigen” kantoorappartement en daar ook alle voordelen uithalen.

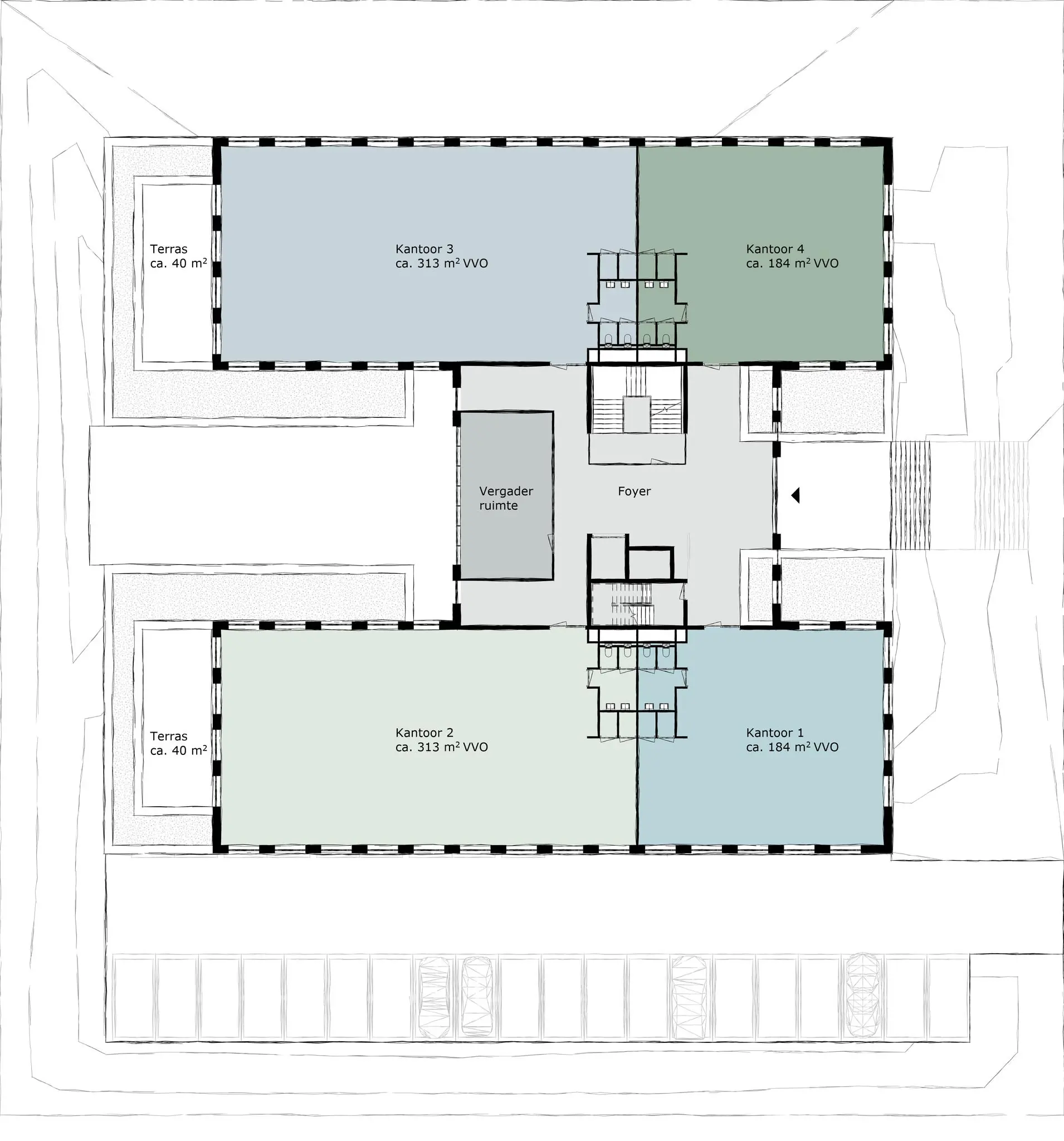
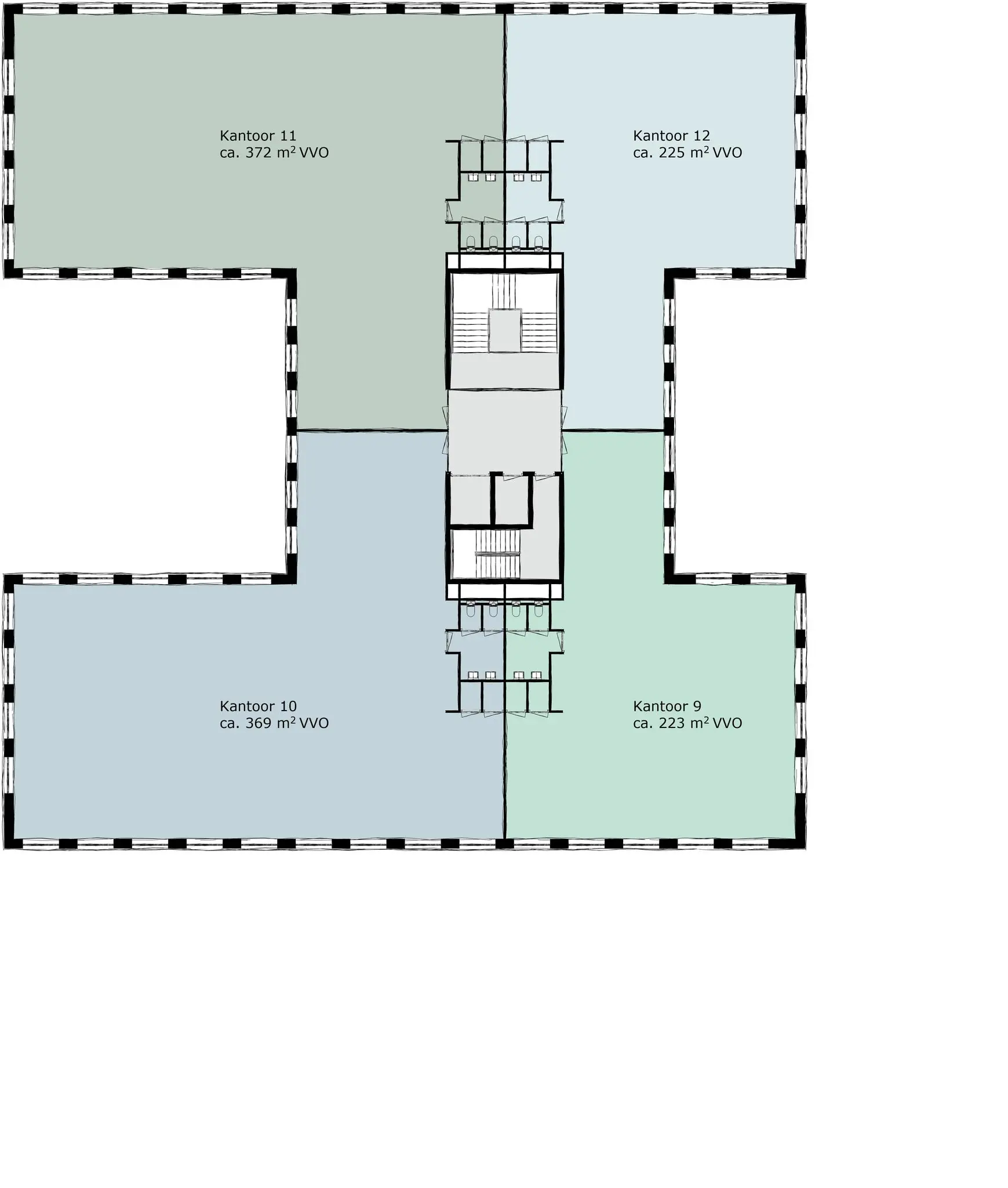
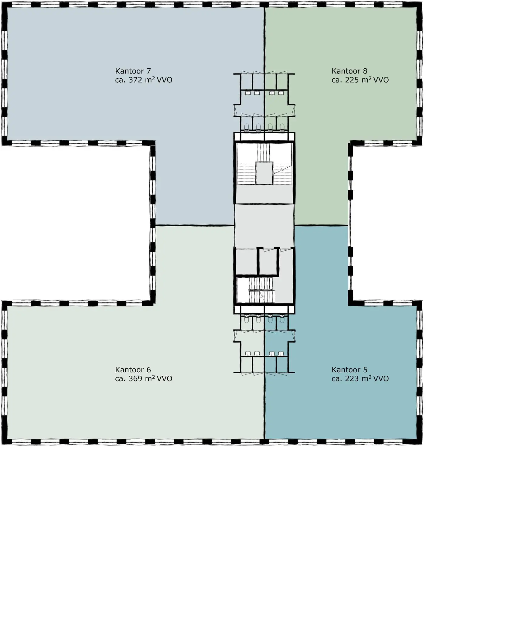
Het gebouw is verdeeld over 3 kantoorlagen, elke bouwlaag kent 4 kantoorappartementen. Er zijn kantoorappartementen in verschillende groottes beschikbaar, vanaf circa 184 m2 v.v.o. tot circa 408 m2 v.v.o. Combinaties zijn mogelijk.

Je komt binnen door een uitnodigende entree waar een gezellige lounge is en een gemeenschappelijke vergaderruimte die uitkijkt op de binnentuin. Hier kun je ideeën uitwisselen, nieuwe contacten leggen en nieuwe samenwerkingen opzetten. En om echt even lekker te genieten tijdens de lunch is er een groot terras aan de waterkant gecreëerd. Onder het gebouw is een parkeerlaag gerealiseerd met plek voor 78 auto’s.

Lakeview Offices is een energiezuinig gebouw en Paris Proof. Dit betekent dat het gebouw al aan de klimaatdoelstelling voldoet van 2050 en hiermee nog maar 70 kWh per m2 per jaar verbruikt. Uiteraard is dit gebouw volledig gasloos en voorzien van een warmtepomp voor verwarming en koeling.

Lakeview Offices zal werken met een creatiesessie, dit is een unieke kans om deel te nemen aan het ontwerp- en beslissingsproces van het Lakeview Offices. Je kunt je stem laten horen en je ideeën en wensen voor het gebouw en de omgeving uiten. Door mee te denken met het gebruik en ontwerp, kun je helpen bij het creëren van een aantrekkelijk en functioneel kantoorgebouw dat voldoet aan de behoeften en verwachtingen van alle betrokken partijen.
Zie ook: www.lakeviewoffices.nl

Business Park Papendorp ligt op het kruispunt van de A2 en de A12. Hierdoor is Papendorp goed bereikbaar met de auto. Het heeft een aantrekkelijke en efficiënte werkomgeving, zo zijn onder andere Bol.com, Unit4, Deloitte, KPMG, Eli Lilly en de NVM hier gevestigd. Op Business Park Papendorp kunt u een lekkere wandeling maken en genieten van een hapje en een drankje in Brasserie De Steiger.

Papendorp wordt aangestuurd door de Vereniging Parkmanagement Papendorp. Deze vereniging zorgt voor het behoud van een hoogwaardige kwaliteit.

Kijk voor meer informatie op de website lakeviewoffices.nl

BEREIKBAARHEID
Eigen vervoer:
De bereikbaarheid met de auto is goed te noemen. Op enkele autominuten afstand zijn de rijkswegen A2 en A12 gelegen.

Openbaar vervoer:
Een snelle busverbinding met Utrecht CS via een vrije busbaan waarborgt een snelle en comfortabele ontsluiting met het openbaar vervoer. De bushalte ligt op slechts enkele minute loopafstand.

VLOEROPPERVLAK
Voor de verkoop zijn kantoorappartementen van verschillende groottes beschikbaar, verdeeld als volgt:

Begane grond
Kantoor 1 | circa 202 m2 v.v.o.
Kantoor 2 | circa 344 m2 v.v.o. inclusief een terras van circa 40 m2
Kantoor 3 | circa 344 m2 v.v.o. inclusief een terras van circa 40 m2
Kantoor 4 | circa 202 m2 v.v.o.

1e verdieping
Kantoor 5 | circa 245 m2 v.v.o.
Kantoor 6 | circa 405 m2 v.v.o.
Kantoor 7 | circa 408 m2 v.v.o.
Kantoor 8 | circa 247 m2 v.v.o.

2e verdieping
Kantoor 9 | circa 245 m2 v.v.o.
Kantoor 10 | circa 405 m2 v.v.o.
Kantoor 11 | circa 408 m2 v.v.o.
Kantoor 12 | circa 247 m2 v.v.o.

Combinaties zijn mogelijk.

PARKEERGELEGENHEID
In de ondergelegen parkeergarage zijn 78 parkeerplaatsen beschikbaar. De parkeernorm bedraagt 1:43.

OPLEVERINGSNIVEAU
De kantoorruimte wordt opgeleverd in de hoogwaardige casco staat met de volgende voorzieningen:
• duurzame klimaatinstallatie inclusief koeling;
• per kantoorappartement eigen afgewerkte sanitaire unit;
• gezamenlijke vergaderfaciliteiten in de centrale hal;
• ontwerpsessie met interieurarchitect voor de indeling.

ENEGERGIELABEL
Het kantoorgebouw is voorzien van een Energielabel welke Paris Proof is.

GLASVEZEL
De aansluiting en het verbruik van data- en telecommunicatievoorzieningen zijn niet inbegrepen en dienen door de koper zelf te worden verzorgd en betaald.

AANVAARDING
In overleg.

VOORWAARDEN EN CONDITIES
Vanaf € 840.000,00 tot € 1.750.000,00 v.o.n.

VERENIGING VAN EIGENAREN
Om de kwaliteit en de toekomst te waarborgen wordt een Vereniging van Eigenaren opgericht (VvE). Deze vereniging behartigt de belangen van de eigenaren van de kantoorappartementen en zorgt dat alles goed geregeld wordt, zodat de ondernemers zich kunnen richten op hun organisatie.

Lees meer Lees meer

Kenmerken

Algemeen

Koopsom

Aanvaarding

Bouw

Hoofdfunctie Kantoorruimte

Oppervlakten

Oppervlakte 3.703 m2 (in units vanaf 202 m2)

Indeling

Aantal bouwlagen 3 bouwlagen

Plan een bezichtiging of stel een vraag