Facebook pixel head Willingestraat 4, Rotterdam | Deze locatie huren?

Willingestraat 4

Omschrijving

Algemeen
Altijd al kantoor willen houden op een locatie met spectaculaire Rotterdamse uitzichten? Op een fantastische locatie direct aan de Nieuwe Maas is het vrijstaande kantoorgebouw Willingestraat 4 gelegen. In het kantoorgebouw gesitueerd in het maritieme hart van Rotterdam is momenteel circa 2.122 m² uitermate representatieve turn-key kantoorruimte voor verhuur beschikbaar, verdeeld over een tweetal aansluitende kantoorverdiepingen. Het kantoorgebouw is uitermate duurzaam en energiezuinig door de toepassing van een WKO-installatie en de aanwezigheid van zonnepanelen waardoor het gebouw beschikt over een energielabel A+. De ruime en zeer efficiënt indeelbare verdiepingsvloeren zijn uitstekend geschikt voor het toepassen van moderne en innovatieve werkplekconcepten.

Locatiegegevens
Per auto
De Willingestraat is goed bereikbaar vanaf de zuidelijke ringweg rond Rotterdam met rijkswegen A15 (Europoort-Rotterdam-Nijmegen), A16 (Rotterdam-Dordrecht-Breda) en A29 (Rotterdam-Roosendaal-Zierikzee). Vanuit het centrum is de locatie zowel via het Maastunneltracé alsmede via de Erasmusbrug snel te bereiken.

Per openbaar vervoer
Op korte loopafstand van het gebouw is een halte van de bus (lijn 72) gelegen. Middels deze busverbinding zijn metrostation Slinge en metro- en busstation Zuidplein binnen respectievelijk 8 en 12 minuten te bereiken. Via beide stations en het metronetwerk zijn andere snelle verbindingen met andere delen van Rotterdam en omliggende gemeenten gegarandeerd.

Per water
Nabij het gebouw is een opstapplaats van de Watertaxi gelegen, waarmee het centrum van Rotterdam binnen ca. 5 minuten te bereiken is.

Indeling
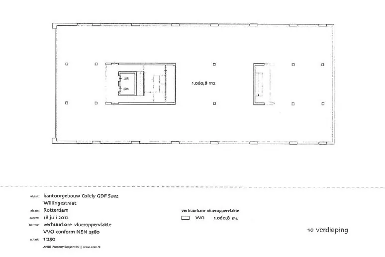
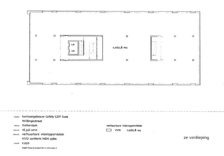
Voor verhuur is in totaal circa 2.120 m² kantoorruimte beschikbaar, te huur vanaf circa 1.060 m². De kantoorruimte is verdeeld over de navolgende verdiepingen:
1e verdieping circa 1.060,80 m²
2e verdieping circa 1.060,80 m²

Voornoemde metrages zijn vastgesteld conform NEN 2580.

In overleg is het tevens bespreekbaar om de voor verhuur beschikbare kantoorruimte uit te breiden naar het gebouw in zijn geheel, waardoor er in totaal circa 5.601 m² kantoorruimte beschikbaar kan worden gemaakt.

Parkeren
Er zijn in totaal 134 parkeerplaatsen beschikbaar. Dit resulteert in een parkeernorm van 1 parkeerplaats per circa 41,7 m² kantoorruimte.

Voorzieningen
De kantoorruimte wordt in de huidige, uitermate representatieve staat opgeleverd, voorzien van onder meer:
– representatieve centrale entree voorzien van receptiedienst met doorverwijs functie;
– gemeenschappelijke vergaderkamer gelegen op de begane grond;
– gemeenschappelijk bedrijfsrestaurant gesitueerd op de 5e verdieping;
– gescheiden sanitaire voorzieningen per verdieping;
– twee personen liften;
– wand- en kabelgoten met per stramienmaat van 1.80 m, een dubbele wandcontactdoos en een dubbele doos t.b.v. telefoon- en data;
– systeemplafond met geïntegreerde LED-verlichtingsarmaturen;
– WKO-installatie;
– moderne luchtbehandelingsinstallatie middels VAV-inductie systeem;
– mindervalide toilet op de begane grond;
– gemeenschappelijke containerruimte;
– gemeenschappelijke fietsenstalling.

In aanvulling op voornoemde casco wijze van oplevering wordt het gehuurde opgeleverd voorzien van het door de voorgaande huurder aangebrachte inrichtingspakket bestaande uit onder meer:
– vloerbedekking;
– binnenzonwering;
– (deels) glazen scheidingswanden;
– pantry per verdieping;
– CAT5 datbekabeling.

Huurprijs
€ 165,- per m² per jaar, exclusief b.t.w. en servicekosten.

Huurprijs parkeerplaatsen
€ 850,- per plaats per jaar, exclusief b.t.w.

Huurtermijn
5 jaar, waarna telkenmale verlengd voor aansluitende periode van 5 jaar.

Opzegtermijn
12 maanden.

Energielabel
Het gebouw is voorzien van een energielabel A+.

Voorschot servicekosten
Een nader overeen te komen bedrag per m² per jaar, exclusief b.t.w. als voorschot voor leveringen en diensten met jaarlijkse nacalculatie.

Datum van oplevering
Per medio 2025.

Huurbetaling
Per kwartaal vooruit.

Zekerheidstelling
Voor oplevering van de ruimte te verstrekken ter grootte van een betalingsverplichting van minimaal 3 maanden inclusief b.t.w.

Huurprijsherziening
Jaarlijks, voor het eerst een jaar na datum huuringang, op basis van de wijziging van het maandindexcijfer volgens de consumentenprijsindex (CPI) reeks CPI-Alle Huishoudens (2015=100), gepubliceerd door het Centraal Bureau voor de Statistiek (CBS).

BTW
Over de huurprijs zal b.t.w. in rekening worden gebracht. Indien b.t.w. niet in rekening kan worden gebracht, geldt een nader te bepalen opslag op bovengenoemde huurprijzen.

Huurovereenkomst
Huurovereenkomst op basis van het standaardmodel van de Raad voor Onroerende Zaken (ROZ) model februari 2015. Met bijbehorende algemene voorwaarden en aangevuld met de bepalingen van verhuurder.

Collegiaal met Goudswaard Real Estate

Lees meer Lees meer

Kenmerken

Algemeen

Huurprijs € 165 /m2/jaar

Aanvaarding In overleg

Bouw

Hoofdfunctie Kantoorruimte

Bouwjaar 2013

Oppervlakten

Oppervlakte 2.122 m2 (in units vanaf 1060 m2)

Indeling

Aantal bouwlagen 2 bouwlagen

Plan een bezichtiging of stel een vraag