Facebook pixel head Hogehilweg 8, Amsterdam | Deze locatie huren?

Hogehilweg 8

Omschrijving

Object
Het kantoorgebouw ‘Keynes Club’ is gelegen aan de Hogehilweg8 te Amsterdam Zuidoost en bestaat uit circa 5.165 m² v.v.o. kantoorruimte. Bij Keynes Club kun je kantoorruimte huren, vergaderen, sporten, een broodje eten en heerlijke koffie drinken. Hier vind je ruimte om hard te werken, maar ook om te ontspannen! Er is een tafelvoetbal, fitnessruimte, een zeer comfortabele bank, een grote leestafel, een restaurant, vergaderruimte en kantoorruimte in diverse metrages.

Keynes Club ligt midden in Amsterdam Zuidoost en op loopafstand van het NS-station Amsterdam Bijlmer ArenA. Deze kantoorlocatie ontwikkelt zich sterk op het gebied van recreatie en werken. Amsterdam Zuidoost is uitgegroeid tot één van de meest populaire vestigingslocaties in de Amsterdamse regio. Tevens ligt het winkelcentrum ‘Amsterdamse Poort’ op loopafstand.

In de directe omgeving zijn diverse vooraanstaande bedrijven uit de zakelijke en financiële dienstverlening gevestigd zoals MWH Global, Epson, Amex, Computrain, BritischTelecom, TruvoNederland, Graydon, Cisco Systems, Telfort, ING en ABN AMRO.

Informatie
Vloeroppervlakte
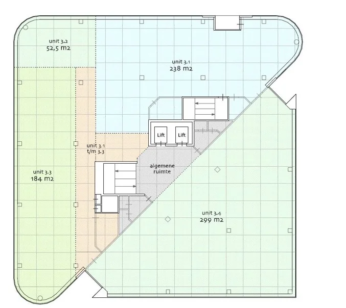
Het gebouw bestaat uit circa 5.165 m² kantoorruimte. Voor verhuur komt er ca. 738 m² v.v.o. kantoorruimte beschikbaar, welke als volgt in het gebouw zijn verdeeld:
• 3e verdieping (unit 3.1) ca. 264 m² v.v.o. kantoorruimte
• 4e verdieping (unit 4.1) ca. 474 m² v.v.o. kantoorruimte

Parkeren
Op het eigen (afgesloten) parkeerterrein is voldoende parkeergelegenheid. Voor het gebouw geldt een gunstige parkeernorm van 1 parkeerplaats per circa 50 m² v.v.o. gehuurde kantoorruimte.

Huurprijs
Kantoorruimte: € 205,-per m² v.v.o. per jaar;
Parkeerplaats: € 1.950,-per plaats per jaar.

Service kosten
NTB.

Aanvaarding
Per direct.

Opleveringniveau
Algemene ruimte:
-Koffiecorner/ receptie met ontvangst van een hostess;
-Gezamenlijke toiletfaciliteiten per verdieping;
-2 personenliften;
-Te openen ramen;
-Bedrijfsrestaurant;
-Diverse vergaderfaciliteiten;
-Fitnessruimte gelegen op de begane grond;
-Buitenterras voorzien van picknicktafels.

Kantoorruimten:
-Te openen ramen;
-Systeemplafonds voorzien van LED verlichtingsarmaturen;
-Sanitaire voorzieningen per verdieping;
-Mechanische ventilatie met topkoeling;
-Centrale verwarming middels radiatoren;
-Kabelgoten ten behoeve van data en elektra;
-Geëgaliseerde vloer (tapijt gereed).

Bereikbaarheid
Per openbaar vervoer
Je bereikt Keynes Club gemakkelijk met het OV, met station Bijlmer Arena en metrostation Bullewijkbeide op loopafstand.

Per auto
Keynes Club ligt dicht aan de A9 en A2 en er is een parkeerterrein bij het gebouw aanwezig.

Lees meer Lees meer

Kenmerken

Algemeen

Huurprijs € 205 /m2/jaar

Aanvaarding Direct

Bouw

Hoofdfunctie Kantoorruimte

Oppervlakten

Oppervlakte 5.165 m2 (in units vanaf 264 m2)

Indeling

Aantal bouwlagen 2 bouwlagen

Plan een bezichtiging of stel een vraag