Facebook pixel head Grasweg 54, Amsterdam | Deze locatie huren?

Grasweg 54

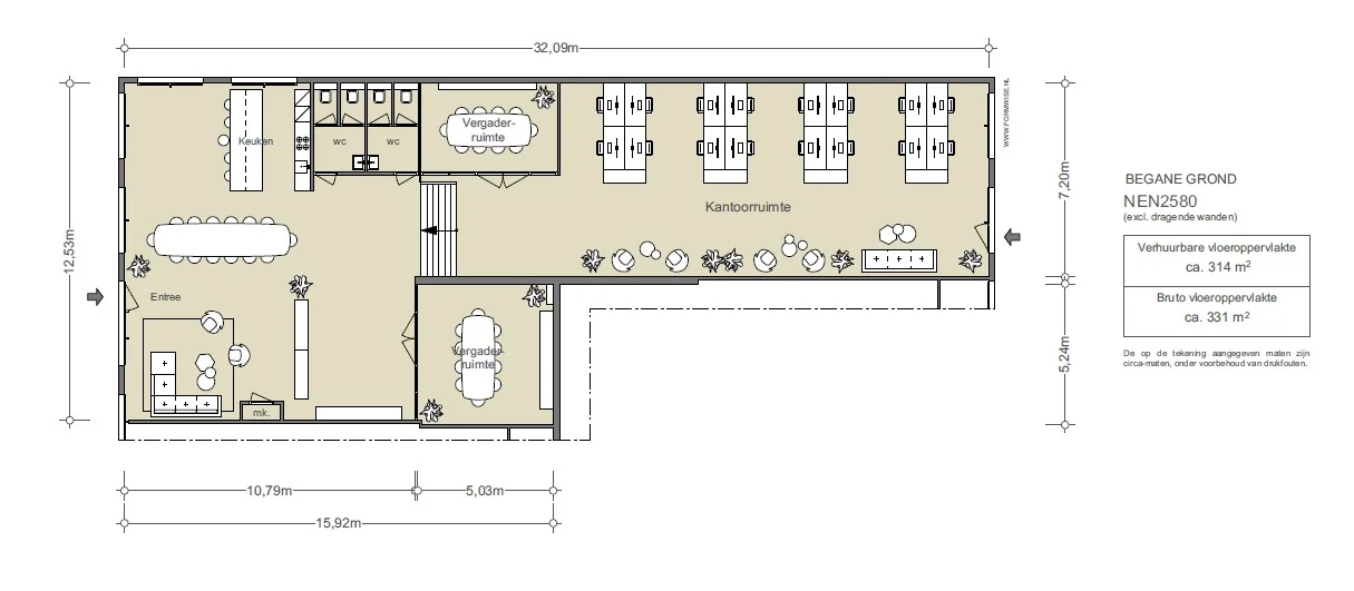
Omschrijving

Gemengde bestemming zoals (avond) horeca, retail, kantoor, showroom- en bedrijfsruimte:

Het object is 314 m² groot en gelegen op de begane grond met de entree aan de voor- en achterzijde;
Eigen zonnig terras aan de voorzijde gelegen op het zuiden;
Gelegen nabij het IJ;
3 eigen parkeerplaatsen gelegen in de beveiligde parkeergarage met een geheel eigen toegang, direct naast het gebouw;
Begane grond met eigen voor- en achter ingang.

Vloeroppervlakte
Het object wordt als geheel verhuurd, 314 m² commerciële ruimte.

Lengte: 32 M
Breedte: 12,5 M

Huurprijs
€ 235,- per m² per jaar, exclusief BTW.

Servicekosten
Nader te bepalen.

Huurtermijn
In overleg.

BEREIKBAARHEID

Per openbaar vervoer
Het Amsterdam Centraal Station is gelegen op 10 minuten afstand, waar de pont ‘Buiksloterham’ vertrekt. Op de kop van de Grasweg vertrekt de pont doordeweeks ieder kwartier richting de pontsteiger. Tevens is de metrohalte ‘Noorderpark’ van de Noord-Zuidlijn op loopafstand gelegen, vanwaar de Zuidas binnen 13 minuten te bereiken is.

Per auto
Per auto is de locatie via de IJ-tunnel en de s116 zeer goed te bereiken.

Per fiets
De gehele oeverzijde van het IJ wordt aangepast en hier zal men een doorgaand park realiseren waar je langs het water kunt wandelen en sporten. Hierdoor zal de Kaap per fiets ook gemakkelijk te bereiken zijn.

Lees meer Lees meer

Kenmerken

Algemeen

Huurprijs € 235 /m2/jaar

Servicekosten € 25 /m2/jaar

Aanvaarding In overleg

Bouw

Hoofdfunctie Kantoorruimte

Oppervlakten

Oppervlakte 314 m2 (in units vanaf 314 m2)

Indeling

Aantal bouwlagen 1 bouwlagen

Plan een bezichtiging of stel een vraag