Facebook pixel head Pilotenstraat 6, Amsterdam | Deze locatie huren?

Pilotenstraat 6

Omschrijving

OBJECT
Het object is gelegen aan de Pilotenstraat 6 op bedrijventerrein ‘de Schinkel’ en beschikt over een representatieve entree met bemande receptie.

Bedrijventerrein ‘de Schinkel’ is hét vestigingsgebied voor met name creatieve ondernemingen in Amsterdam. Op dit moment zijn hier 350 bedrijven gevestigd in het gebied, waaronder ALDA Events, Chasin’, Coravin, Deloitte, ZZDP Architecten, TBWANeboko en Biro.

Het gebied is gelegen aan de A10 en tevens op een paar minuten loopafstand vanaf het Hoofddorpplein en het Olympisch Stadion. Hierdoor is het perfect bereikbaar met de auto en de fiets. In de directe omgeving is zijn veel voorzieningen zoals sterrenrestaurant Wils, Bar Jefferson, The Gym Republic, Club Atelier en Hotel Jansen.

INFORMATIE
Vloeroppervlakte
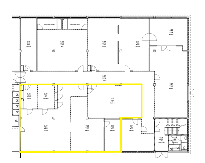
Totaal ca. 339 m² VVO kantoorruimte beschikbaar, als volgt verdeeld:
• Unit 0.18: 64 m² VVO kantoorruimte, gelegen op de begane grond;
• Unit 0.25 t/m 0.30: 275 m² VVO kantoorruimte, gelegen op de begane grond;

Huurprijs
€ 199,- per m² per jaar.

Servicekosten
€ 35,- per m² per jaar.

Aanvaarding
Per direct.

Opleveringsniveau
In huidige staat. (inventaris ter overname verwijderen)

Huurtermijn
Tenminste 2 jaar.

BEREIKBAARHEID
Per openbaar vervoer
Op loopafstand is het Hoofddorpplein gelegen. Hiervandaan vertrekt onder andere tram 2 richting Amsterdam Centraal Station. Op 10 minuten loopafstand is het metrostation Henk Sneevlietweg gelegen, waarvandaan verschillende metro’s vertrekken in de richting Amsterdam Zuid en Sloterdijk.

Per auto
Door de gunstige ligging naast de verbindingsweg s107 en de ringweg A10 is de locatie zeer goed te bereiken met de auto.

Lees meer Lees meer

Kenmerken

Algemeen

Huurprijs € 199 /m2/jaar

Servicekosten € 35 /m2/jaar

Aanvaarding Direct

Bouw

Hoofdfunctie Kantoorruimte

Bouwjaar 1952

Oppervlakten

Oppervlakte 339 m2 (in units vanaf 64 m2)

Indeling

Aantal bouwlagen 1 bouwlagen

Plan een bezichtiging of stel een vraag