Facebook pixel head Bloemlaan 2, Hoofddorp | Deze locatie huren?

Bloemlaan 2

Omschrijving

Dit stijlvolle kantoor maakt onderdeel uit van het volledig vernieuwde kantoorgebouw ‘The Botanic’ in Hoofddorp. Het pand is gelegen aan de Bloemlaan 2 en ondergaat momenteel een hoogwaardige transformatie waarbij duurzaamheid, comfort en uitstraling centraal staan. De directe omgeving ontwikkelt zich snel en biedt tal van faciliteiten, waaronder horeca (zoals Caffè Macchiato en restaurant Den Burgh), een stadspark en uitstekende bereikbaarheid per OV en auto. Deze inspirerende werkomgeving is ideaal voor bedrijven die zich willen vestigen op een strategische locatie, vlakbij Schiphol, Amsterdam en Haarlem.

De kantoorruimtes zijn stijlvol en efficiënt ingericht, met veel daglicht en hoogwaardige afwerking. De units beschikken over moderne werkplekken, spreekkamers, focusruimtes, pantry’s en comfortabele ontvangstruimtes. Daarnaast is elke verdieping voorzien van gedeelde voorzieningen zoals een barista-receptie, een luxe boardroom en een volledig uitgeruste gym. De indeling is flexibel en sluit aan op verschillende teamgroottes. Dankzij het duurzame karakter van het gebouw (energielabel A+++) en de eigentijdse uitstraling is The Botanic uitermate geschikt voor groeiende en gevestigde ondernemingen.

Een groot pluspunt van dit kantoorpand is de combinatie van comfort en functionaliteit: naast flexibele werkplekken zijn er ook extra services beschikbaar zoals een elektrische deelauto, gedeelde fietsen en een shuttlebus naar het station. Werken in The Botanic betekent kiezen voor kwaliteit, gemak én toekomstbestendigheid.

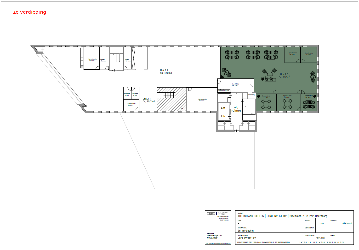
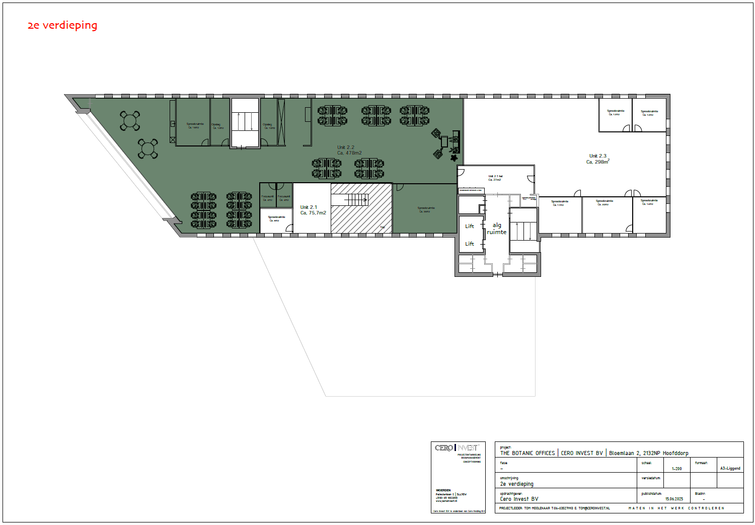
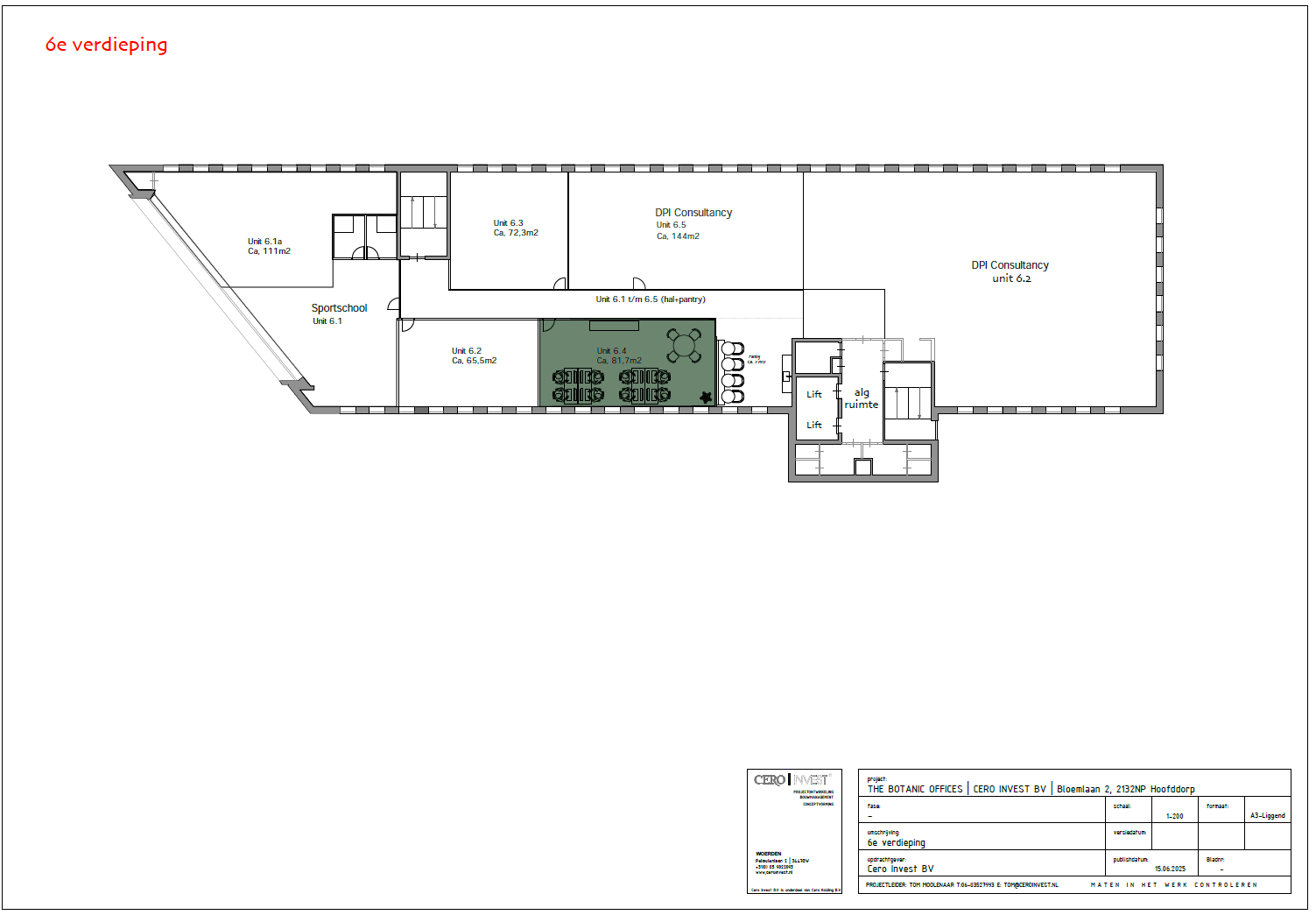
Beschikbare kantoorruimte
ca. 478 m² v.v.o kantoorruimte op de 2de verdieping.

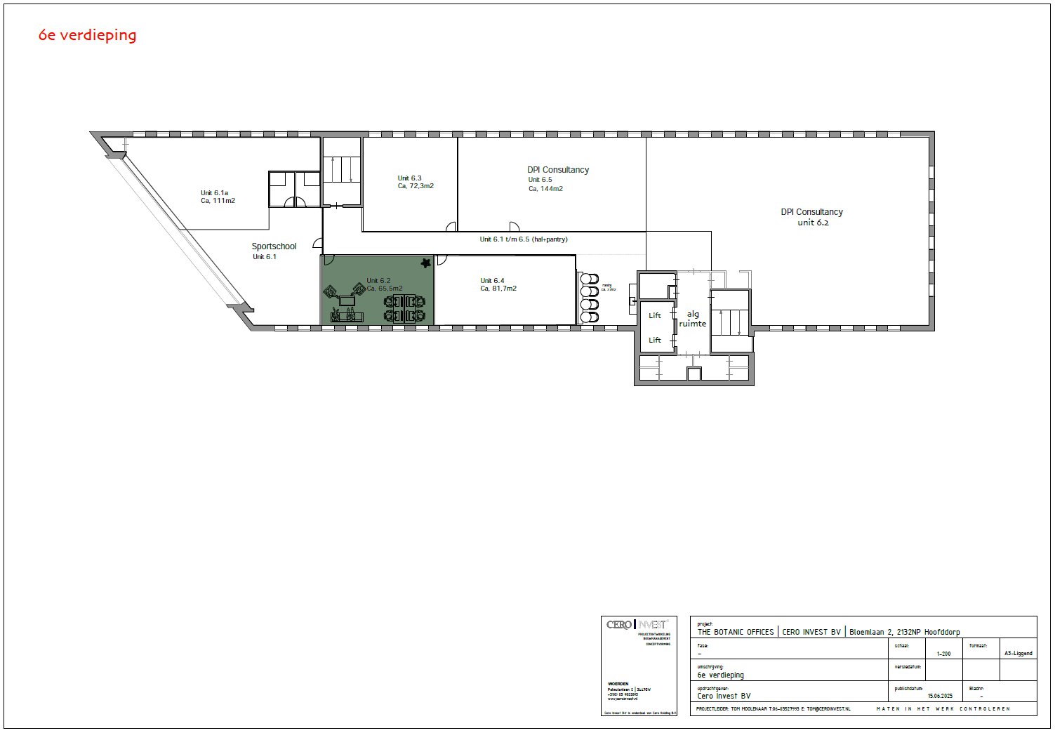
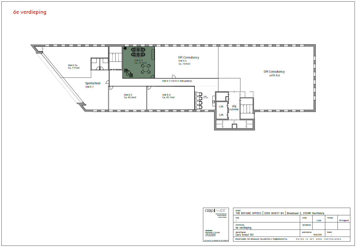
Tevens zijn er meerdere units beschikbaar vanaf 50 m².
Unit 6.2 – ca. 65 m² v.v.o. (€1.395,- per maand, incl. servicekosten, excl. BTW)
Unit 6.3 – ca. 72 m² v.v.o. (€1.595,- per maand, incl. servicekosten, excl. BTW)
Unit 6.4 – ca. 81 m² v.v.o. (€1.795,- per maand, incl. servicekosten, excl. BTW)

Huurprijzen
Vanaf € 175 per m² per jaar, excl. BTW (2e verdieping)
Vanaf € 1.395 per maand incl. servicekosten en parkeren (6e verdieping)

Servicekosten
In de huurprijs inbegrepen bij units op de 6e verdieping en op de 2e verdieping o.b.v. een voorschot van €50,- per m².

Parkeren
Parkeerratio 1 : 50 m² in overleg meer ruimte beschikbaar. Prijs in overleg.

Bereikbaarheid
Openbaar vervoer
Het gebouw is uitstekend bereikbaar met het openbaar vervoer. Station Hoofddorp ligt op ca. 12 minuten loopafstand en er is een R-NET bushalte op ca. 800 meter. Daarnaast rijdt er ook nog dagelijks een shuttlebus tussen het station en het pand.

Eigen vervoer
The Botanic is uitstekend ontsloten via de Kruisweg (N201) en de snelweg A4 richting Amsterdam, Schiphol, Den Haag en Rotterdam. De locatie beschikt over een afgesloten parkeergarage onder het gebouw, wat zorgt voor veilig en comfortabel parkeren voor medewerkers en bezoekers.

Lees meer Lees meer

Kenmerken

Algemeen

Huurprijs € 175 /m2/jaar

Servicekosten € 50 /m2/jaar

Aanvaarding Direct

Bouw

Hoofdfunctie Kantoorruimte

Bouwjaar 2010

Oppervlakten

Oppervlakte 298 m2 (in units vanaf 50 m2)

Indeling

Aantal bouwlagen 1 bouwlagen

Plan een bezichtiging of stel een vraag