Facebook pixel head Fascinatio Boulevard 802, Capelle aan den ijssel | Deze locatie huren?

Fascinatio Boulevard 802

Omschrijving

Object
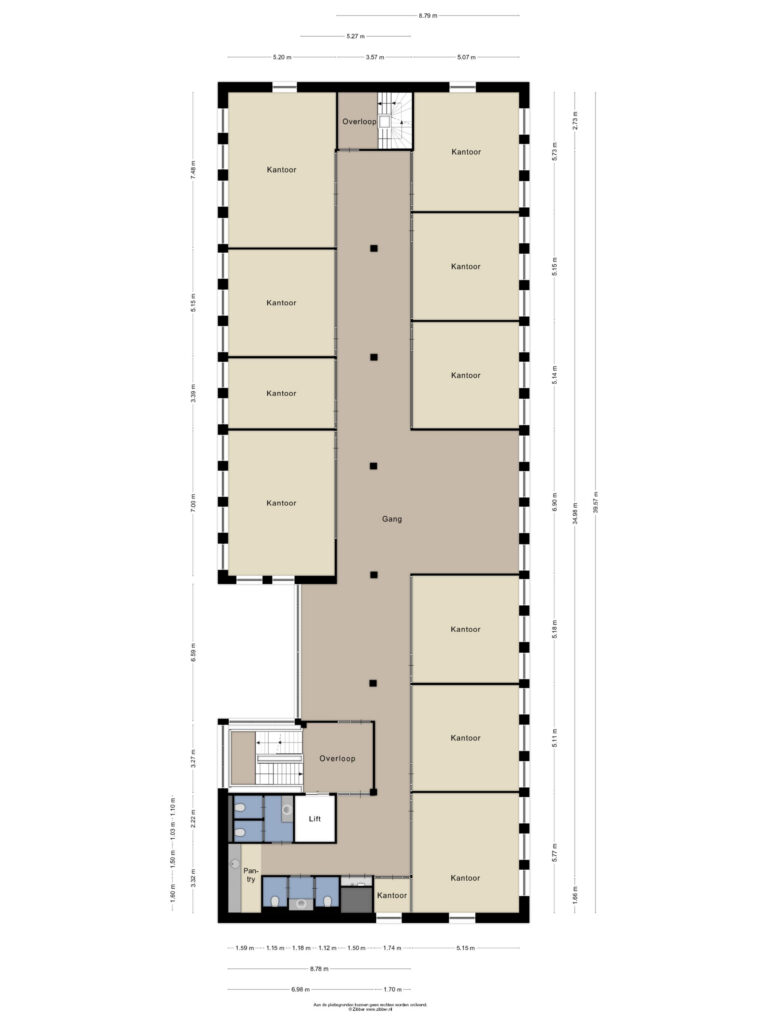
Het moderne kantoorgebouw “Wings” is gelegen aan de oostkant van Rotterdam op kantorenpark Fascinatio. Het betreft een hoogwaardig kantoorgebouw, ter grootte van in totaal 2.148 m² v.v.o. kantoorruimte verdeeld over 4 lagen, in combinatie met 35 eigen parkeerplaatsen. Voor de verhuur is momenteel nog circa 532 m² v.v.o. kantoorruimte beschikbaar.

Het gebouw heeft een opvallende architectuur en beschikt over uitermate efficiënt indeelbare en transparante kantoorvloeren. Het gebouw is verder voorzien van hoogwaardige klimaatinstallaties waardoor een prettig binnenklimaat voor de gebruikers van het gebouw is gewaarborgd!

Locatiegegevens
Het kantorenpark Fascinatio is gelegen langs de Abram van Rijckevorselweg, de doorgaande weg direct vanaf de A16 richting Capelle aan den IJssel, Rotterdam en de Krimpenerwaard. Het park is door zijn strategische ligging nabij rijksweg A16 en metrostation Capelsebrug, gemakkelijk bereikbaar met zowel de auto alsmede het openbaar vervoer. Vanaf Capelsebrug reist men in circa 20 minuten naar Rotterdam CS en in circa 10 minuten naar NS-intercity station Alexander.

Fascinatio is een modern en goed georganiseerd multifunctioneel district waar wonen, werken en ontspannen samenkomen. Hierdoor is het een populaire bestemming voor zowel nationale als internationale bedrijven.

Het kantorenpark Fascinatio staat bekend om zijn groene omgeving en moderne architectuur. Er zijn verschillende groenvoorzieningen en parkachtige gebieden waar werknemers kunnen ontspannen en genieten van de natuurlijke omgeving.

Parkeren
Het gebouw beschikt over een eigen parkeerterrein, voor de verhuur zijn 9 aangewezen parkeerplaatsen beschikbaar. In aanvulling hierop is er direct naast het gebouw een openbaar parkeerterrein aanwezig welke is voorzien van 4-laadstations voor elektrische auto’s. Verder is er in de directe omgeving van het gebouw een ruim aanbod aan (gratis) openbare parkeerplaatsen.

Voorzieningen
Het kantoorgebouw zal worden opgeleverd voorzien van onder andere:
– ruime luxe entree voorzien van een automatische tourniquet;
– kabelgoten langs de gevel ten behoeve van elektra, data en telefoon, voorzien van elektra en WCD’s, exclusief databekabeling;
– brandmeld- en ontruimingsinstallatie;
– brandblusvoorzieningen;
– personenliftinstallatie;
– ruime pantry met vaatwasser per verdieping;
– systeemplafonds met geïntegreerde LED-verlichtingsarmaturen;
– verwarming, luchtbehandeling voorzien van airconditioning middels klimaatregeling;
– gescheiden dames- en herentoiletten op alle verdiepingen;
– t.p.v. bordestrap is een mindervalide lift aanwezig;
– mindervalide toilet op 3e etage.

In aanvulling op voornoemde wijze van oplevering zal de kantoorruimte worden opgeleverd voorzien van het door vertrekkend huurder aangebrachte hoogwaardige inrichtingspakket, bestaande uit onder meer:
– aanwezige vloerbedekking;
– aanwezige scheidingswanden;
– aanwezige keukenvoorziening;
– aanwezige ICT infrastructuur.

Huurprijs kantoorruimte
€ 157,50 per m² v.v.o. per jaar, te vermeerderen met b.t.w. en servicekosten.

Huurprijs parkeren
€ 750,- per plaats per jaar, te vermeerderen met b.t.w.

Voorschot servicekosten
€ 45,– per m² v.v.o. per jaar te vermeerderen met b.t.w. als verrekenbaar voorschot.

Energielabel
Het kantoorgebouw beschikt over een energielabel A.

Aanvaarding
Per direct.

Zekerheidstelling
Voor oplevering van de ruimte te verstrekken ter grootte van een betalingsverplichting van minimaal 3 maanden inclusief b.t.w.

Huurprijsherziening
Jaarlijks, voor het eerst een jaar na datum huuringang, op basis van de wijziging van het maandindexcijfer volgens de consumentenprijsindex (CPI) reeks CPI-Alle Huishoudens (2015=100), gepubliceerd door het Centraal Bureau voor de Statistiek (CBS).

BTW
Over de huurprijs zal b.t.w. in rekening worden gebracht. Indien b.t.w. niet in rekening kan worden gebracht, geldt een nader te bepalen opslag op bovengenoemde huurprijzen.

Huurovereenkomst
Huurovereenkomst op basis van het standaardmodel van de Raad voor Onroerende Zaken (ROZ) model februari 2015 met bijbehorende algemene voorwaarden en aangevuld met de bepalingen van verhuurder.

Lees meer Lees meer

Kenmerken

Algemeen

Huurprijs € 158 /m2/jaar

Servicekosten € 45 /m2/jaar

Aanvaarding In overleg

Bouw

Hoofdfunctie Kantoorruimte

Bouwjaar 2008

Oppervlakten

Oppervlakte 532 m2 (in units vanaf 532 m2)

Indeling

Aantal bouwlagen 1 bouwlagen

Plan een bezichtiging of stel een vraag