Facebook pixel head Cypresbaan 7, Capelle aan den ijssel | Deze locatie huren?

Cypresbaan 7

Omschrijving

Algemeen
Dit kantorencomplex aan de Cypresbaan 7-9 te Capelle aan den IJssel, biedt huurmogelijkheden in twee vormen:
• Kant en klare businessunits tussen de 66 m² en 74 m² beschikbaar tegen all-in huurprijzen voorzien van o.a. nieuwe airconditioning. Huurders kunnen gezamenlijk gebruik maken van een lunch- en vergaderruimte.
• Gerenoveerde zelfstandige kantoorruimte vanaf ca. 89 m² voor de grotere kantoorgebruiker die iets meer zijn eigen identiteit zoekt. Het niveau van oplevering kan met verhuurder worden besproken. De gebouwen beschikken gezamenlijk over een ruime moderne ingerichte entree zone. Op de Cypresbaan 7 is tevens een gastvrouw aanwezig van 08.30 uur tot 14.30 uur.

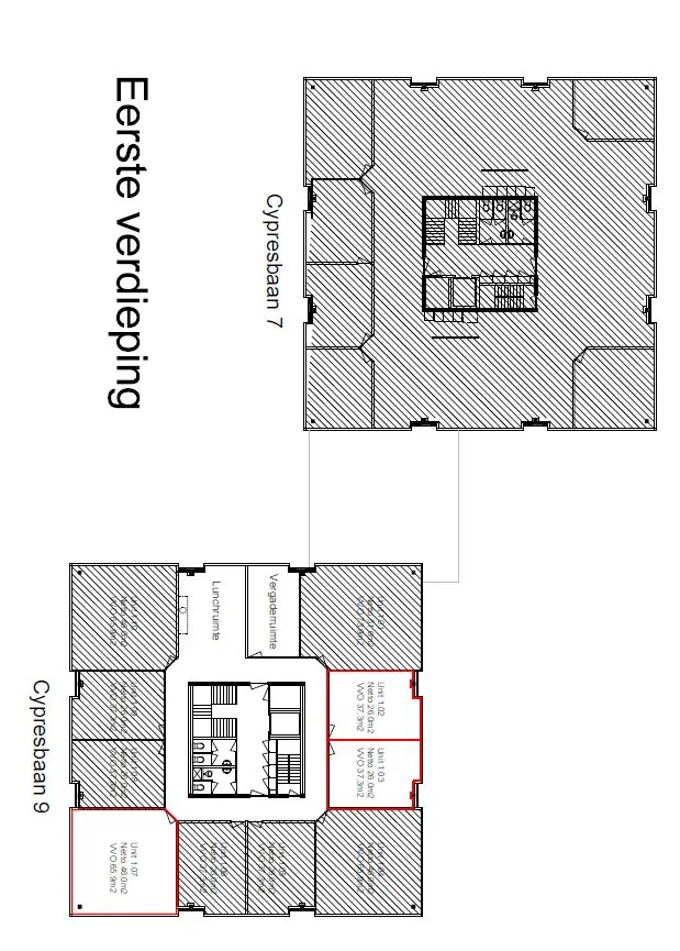
Beschikbaarheid
Cypresbaan 9 – Business Units*
2e verdieping unit 2.08 – ca. 38 m² – huurprijs per maand € 475,- aanvaarding 1 november 2023
2e verdieping unit 2.10 – ca. 68 m² – huurprijs per maand € 850,- aanvaarding 1 oktober 2023

3e verdieping – ca. 82 m² – huurprijs € 95,- per m² per jaar – aanvaarding 1 januari 2024

Cypresbaan 15
3e verdieping unit 3.02 – ca. 30 m² – huurprijs per maand € 375,- aanvaarding 1 april 2024

*Prijzen zijn inclusief servicekosten, collectieve glasvezelverbinding en het gebruik van de gezamenlijke vergader- en lunchruimte. Exclusief b.t.w. en parkeren.

*De genoemde metrages betreffen het verhuurbare vloeroppervlak. Hierin omgeslagen zijn de gedeelde algemene ruimtes, entree, gangen, toiletten etc. Zie de plattegrond voor de netto metrages.

Parkeren
Er zijn voldoende parkeerplaatsen op het eigen parkeerterrein aanwezig waar tegen een huur van € 350,00 per jaar een parkeerplaats kan worden gehuurd.

Locatiegegevens
Het complex is gelegen op bedrijvenpark Hoofdweg en is uitstekend bereikbaar per auto. De op- en afritten (Rotterdam -Alexander / Capelle aan den IJssel) van de A20 liggen op nog geen kilometer. Er is een directe busverbinding vanaf de Hoofdweg naar het NS-station Capelle-Schollevaar, alsmede het NS-/ metrostation Alexander.

Voorzieningen
De kantoorruimtes zijn voorzien van o.a.:
– representatieve entreehal;
– liftvoorziening;
– nieuwe systeemplafonds;
– nieuwe geïntegreerde energiezuinige verlichtingsarmaturen;
– zonwerende folie op de ramen;
– sanitaire groepen per verdieping;
– pantry per verdieping;
– glasvezelverbinding.

Energielabel
Voor zowel de Cypresbaan 7 en 9 is de energieprestatie bepaald. Hierbij is een energielabel A afgegeven. Door investeringen in de duurzaamheid vanuit de verhuurder, voldoet het pand hiermee aan de verplichting om in 2030 een energielabel A te hebben en is derhalve enorm energiezuinig.

Huurtermijn
In overleg.

Voorschot service-/ en verwarmingskosten
Het voorschot bedraagt € 30,00 per m² per jaar, exclusief b.t.w.

Huurgarantie
Voor oplevering van de ruimte te verstrekken ter grootte van een betalingsverplichting van minimaal 3 maanden inclusief b.t.w.

Huurprijsherziening
Jaarlijks, voor het eerst een jaar na datum huuringang, op basis van de wijziging van het maandindexcijfer volgens de consumentenprijsindex (CPI) reeks CPI-Alle Huishoudens (2015=100), gepubliceerd door het Centraal Bureau voor de Statistiek (CBS).

BTW
Over de huurprijs zal b.t.w. in rekening worden gebracht. Indien b.t.w. niet in rekening kan worden gebracht, geldt een nader te bepalen opslag op bovengenoemde huurprijzen.

Huurovereenkomst
Huurovereenkomst op basis van het standaardmodel van de Raad voor Onroerende Zaken (ROZ) model februari 2015. Met bijbehorende algemene voorwaarden en aangevuld met de bepalingen van verhuurder.

Lees meer Lees meer

Kenmerken

Algemeen

Huurprijs € 825 Per maand

Servicekosten € 30 /m2/jaar

Aanvaarding Direct

Bouw

Hoofdfunctie Kantoorruimte

Oppervlakten

Oppervlakte 140 m2 (in units vanaf 66 m2)

Indeling

Aantal bouwlagen 2 bouwlagen

Plan een bezichtiging of stel een vraag