Facebook pixel head Ruysdaelstraat 34, Amsterdam | Deze locatie huren?

Ruysdaelstraat 34

Omschrijving

OBJECT
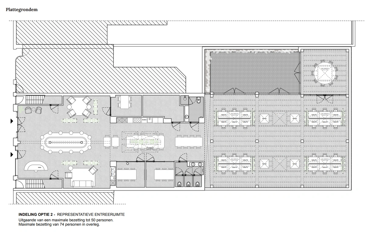
Stap binnen in kantoor ‘De Ruys’: een hoogwaardig kantoor waar comfort, stijl en functionaliteit samenkomen. ‘De Ruys’ is gelegen in het prestigieuze Amsterdam Zuid aan de Ruysdaelstraat 34-36 met vele faciliteiten nabij zoals restaurants, koffiebars en winkels. ‘De Ruys’ is een hoogwaardig kantoor. Het kantoor van ca. 400 m² groot wordt volledig gerenoveerd en turn-key opgeleverd in augustus 2025. Naast een eigen entree heeft het kantoor ook een royale binnentuin van ca. 51 m² groot. Dankzij de natuurlijke lichtinval middels exclusieve (dak-)ramen, de aanbouw van hout en rustige kleuren is het een zeer elegant kantoor. Het geheel is ontworpen voor optimale productiviteit, waarbij het welzijn van de mens centraal staat. Of je nu zoekt naar een professionele werkplek, een inspirerende omgeving voor je team of een ruimte die direct te betrekken is, dan is ‘De Ruys’ de perfecte turn-key oplossing in het levendige Museumkwartier.

LOCATIE
‘De Ruys’ is gevestigd aan de sfeervolle Ruysdaelstraat, tussen het Museumplein en de Cornelis Schuytstraat, een gebied dat bekendstaat om zijn rust, elegantie en uitstekende voorzieningen. De centrale ligging in Amsterdam-Zuid betekent dat u zich in een van de meest gewilde buurten van de stad bevindt, ideaal voor ondernemers die een representatieve en comfortabele werkplek zoeken.

BEREIKBAARHEID
Eigen Vervoer
‘De Ruys’ is goed bereikbaar met de auto en er is de mogelijkheid om een bedrijf parkeervergunning aan te vragen. Via de Hobbemakade bereikt u eenvoudig de Ring A10, waarmee u snel verbinding hebt met de A2 en A4. Ook met de fiets is het pand uitstekend bereikbaar vanuit alle delen van de stad.

Openbaar Vervoer
Het object ligt op een minuut loopafstand van diverse tram- en bushaltes met directe verbindingen naar Station Zuid (ca. 10 minuten), Station RAI (ca. 12 minuten) en Amsterdam Centraal (ca. 15 minuten). Dankzij de ligging nabij de belangrijke OV-knooppunten zijn zowel de Zuidas als het historische centrum moeiteloos bereikbaar.

BESCHIKBARE KANTOORRUIMTE
De totale beschikbare kantoorruimte bedraagt circa 400 m² v.v.o. verdeeld over een gelijkvloers kantoor met een royale binnentuin van circa 51 m². Het kantoor wordt opgeleverd in augustus 2025 en beschikt over een eigen entree.

HUURPRIJS
Kantoorruimte: € 500,- per m² v.v.o. per jaar, exclusief BTW.

OPLEVERINGSNIVEAU
De ruimte wordt in hoogwaardige turn-key staat opgeleverd met oog voor design, duurzaamheid en functionaliteit. De afwerking is van hoog niveau en omvat onder andere:

• High-end betonvloer;
• Nieuwe houten aanbouw;
• Vloerpotten met stopcontacten en datavoorzieningen;
• Koeling via airconditioning;
• Mechanische ventilatie;
• Vloerverwarming (warmtepomp);
• 20 PV-panelen op het dak;
• Prachtig groen sedumdak;
• Pantry en koffiecorner;
• Ledverlichting (spots op rails);
• 4 vergaderruimtes;
• Toiletgroep met 3 toiletten, douche en ‘MIVA toilet’;
• Deels wit geschilderde muren;
• Exclusieve entree met dubbele toegangsdeuren;
• Gerenoveerde gevel;
• Royale binnentuin van ca. 51 m².

HUURTERMIJN
5 + 5 jaar

OPZEGTERMIJN
Ten minste 12 maanden voor het einde van een huurperiode.

HUURBETALING
Maandelijks bij vooruitbetaling, bestaande uit 1 maand huur, te vermeerderen met BTW.

ZEKERHEIDSSTELLING
Huurder dient een bankgarantie te stellen ter grootte van ten minste 3 maanden huur, te vermeerderen met BTW.

OPLEVERINGSDATUM
Augustus 2025.

HUUROVEREENKOMST
Volgens het model van de verhuurder, welk model is gebaseerd op de huurovereenkomst kantoorruimte en overige bedrijfsruimte genoemd in artikel 7:230a volgens het ROZ-model 2015.

LET OP
De gepresenteerde foto’s zijn gegenereerd met behulp van AI en dienen enkel ter illustratie. Er kunnen geen rechten aan worden ontleend. Werkelijke situaties kunnen afwijken.

Lees meer Lees meer

Kenmerken

Algemeen

Huurprijs € 500 /m2/jaar

Aanvaarding Direct

Bouw

Hoofdfunctie Kantoorruimte

Bouwjaar 1912

Oppervlakten

Oppervlakte 400 m2 (in units vanaf 400 m2)

Indeling

Aantal bouwlagen 1 bouwlagen

Plan een bezichtiging of stel een vraag