Facebook pixel head Nieuwe Spiegelstraat 36, Amsterdam | Deze locatie huren?

Nieuwe Spiegelstraat 36

Omschrijving

Nieuwe Spiegelstraat 36 biedt per direct een hoogwaardige turn-key kantoorruimte van ca. 220 m². Gelegen op een uitstekende, centraal bereikbare locatie in het hart van de stad, met alle voorzieningen. Met horeca en OV op loopafstand, is dit een ideale plek voor teams die snel willen schakelen zonder in te leveren op uitstraling en comfort. De ruimte wordt instapklaar opgeleverd en is efficiënt in te delen voor zowel open werkplekken als (team)kamers. Uniek aan deze locatie is het ruime privé dakterras: een prettige buitenruimte voor informele overleggen, ontspanning of ontvangst van gasten. Een representatieve, direct beschikbare kantooroplossing op een toplocatie.

Beschikbaarheid
Voor de verhuur komt ca. 220 m² v.v.o. beschikbaar, als volgt verdeeld:
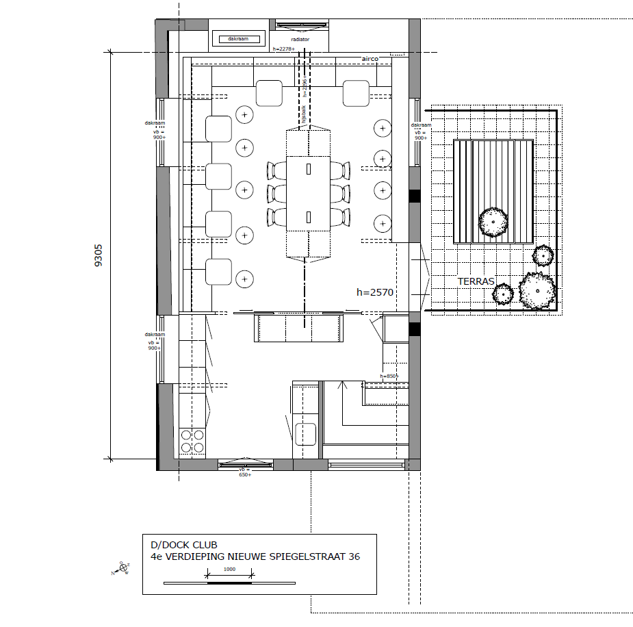
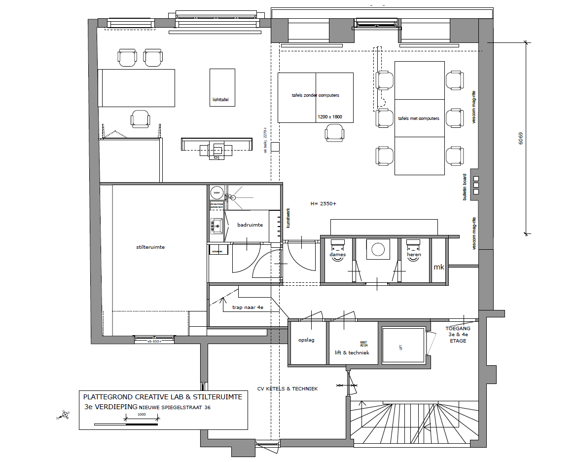
3e verdieping 120 m² v.v.o.
4e verdieping 100 m² v.v.o.

Huurprijs
€ 360,- m² v.v.o. per jaar, excl. BTW.

Servicekosten
Nader te bepalen.

Huurtermijn
In overleg.

Aanvaarding
Per direct.

Faciliteiten
Meerdere meeting rooms;
Airconditioning en verwarming;
Eigen dakterras;
Pantry/lunchruimte;
Turn-key;
Lift;
Intercom systeem.

Bereikbaarheid
Per openbaar vervoer
Door de centrale ligging en de directe nabijheid van de Leidsestraat en Vijzelstraat is de bereikbaarheid per openbaar vervoer uitstekend. Tramlijnen 1, 2, 5 en 24 hebben directe verbindingen met belangrijke treinstations. Op 5 minuten lopen bevindt zich de metro halte van Noord-Zuidlijn ‘de Vijzelgracht’.

Per auto
Daarnaast is het object goed bereikbaar per auto. De reistijd vanaf de Ringweg A10 is ongeveer 10 minuten. In de nabije omgeving en binnen 5 minuten loopafstand zijn meerdere mogelijkheden tot (openbaar) parkeren en openbare parkeergarages.

Lees meer Lees meer

Kenmerken

Algemeen

Huurprijs € 360 /m2/jaar

Aanvaarding Direct

Bouw

Hoofdfunctie Kantoorruimte

Bouwjaar 1988

Oppervlakten

Oppervlakte 220 m2 (in units vanaf 100 m2)

Indeling

Aantal bouwlagen 2 bouwlagen

Plan een bezichtiging of stel een vraag