Facebook pixel head Damrak 89, Amsterdam | Deze locatie huren?

Damrak 89

Omschrijving

Het Gebouw

Het kantoorpand is gunstig gesitueerd aan het Damrak, vroeger het economische middelpunt van de stad. Tegenwoordig onderdeel van de Rode Loper. Het kantoorpand is gelegen op een ware zichtlocatie en wordt omringt door recent gevestigde namen als Guerilla , Bestseller, Adyen en Usabilla. Het gaat om twee aaneengesloten panden waardoor het object beschikt over zeer ruime vloeren. De vele raampartijen aan weerszijden zorgen voor grootschalige daglichttoetreding . Het object is gelegen in hartje Amsterdam. In de directe omgeving bevinden zich het Centraal Station en de prachtige Dam. De directe omgeving kenmerkt zich door een combinatie van wonen, werken en recreëren. Tevens is de grote diversiteit aan voorzieningen (o.a. winkels, hotels en restaurants) een hoogtepunt.

Beschikbaar

Metrage
Circa 500 m².

Huurtermijn
5 jaar.

Aanvaarding
Per direct.

Huurprijs
€ 295,- m² v.v.o. per jaar, excl BTW.

Servicekosten
€ 25,- m² v.v.o. per jaar, excl BTW.

Bereikbaarheid

Per OV
Het object is zeer goed bereikbaar met het openbaar vervoer. Het object ligt op vijf minuten loopafstand van Centraal Station Amsterdam, welke in uitstekende verbinding staat met omliggende steden.

Per Auto
Door de gunstige ligging naast de verbindingsweg S100 is het object ook goed bereikbaar met de auto. Zo zijn de Ringwegen A10, A1 en A2 binnen enkele minuten te bereiken.

Lees meer Lees meer

Kenmerken

Algemeen

Huurprijs € 295 /m2/jaar

Servicekosten € 25 /m2/jaar

Aanvaarding Direct

Bouw

Hoofdfunctie Kantoorruimte

Bouwjaar 1728

Oppervlakten

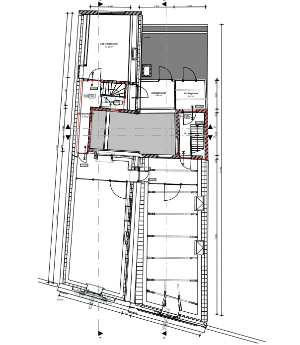
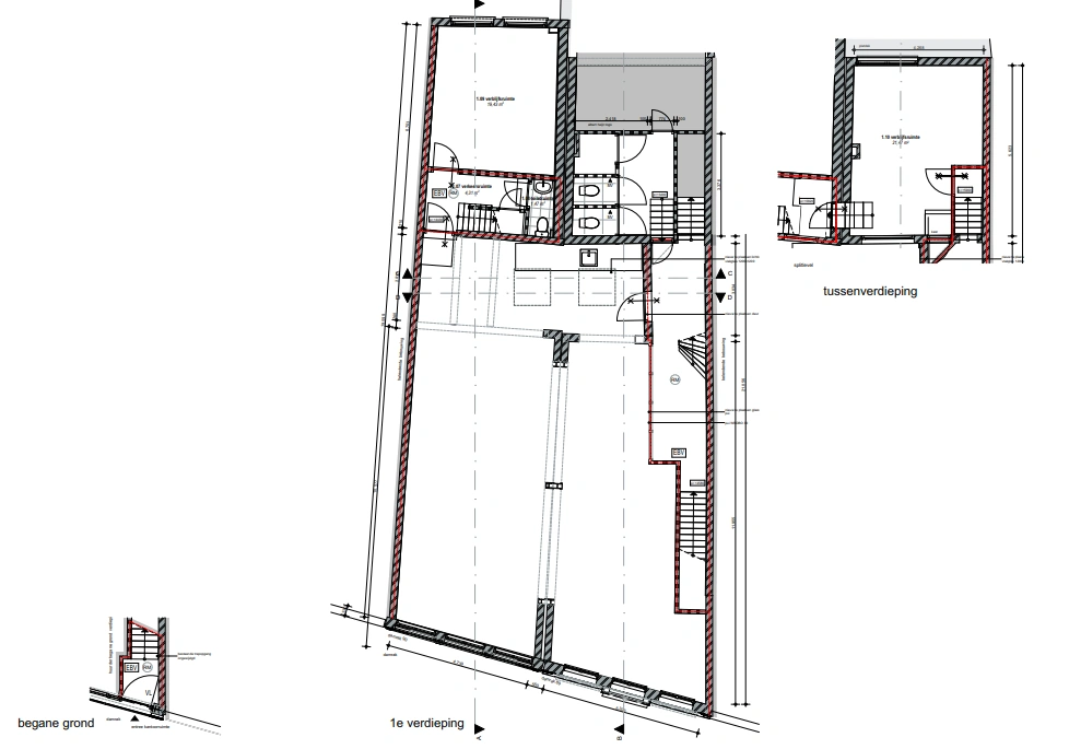
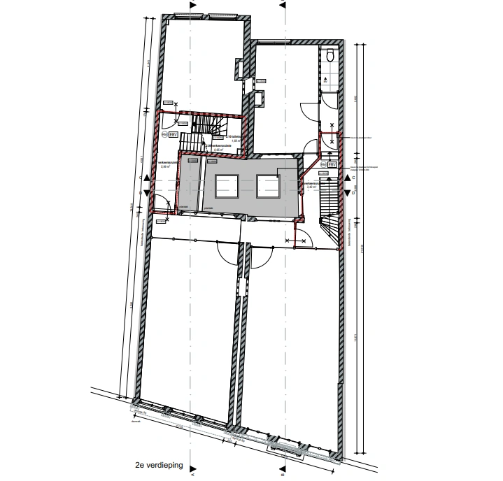
Oppervlakte 500 m2 (in units vanaf 500 m2)

Indeling

Aantal bouwlagen 3 bouwlagen

Plan een bezichtiging of stel een vraag