Facebook pixel head Franciscusweg 219, Hilversum | Deze locatie huren?

Franciscusweg 219

Omschrijving

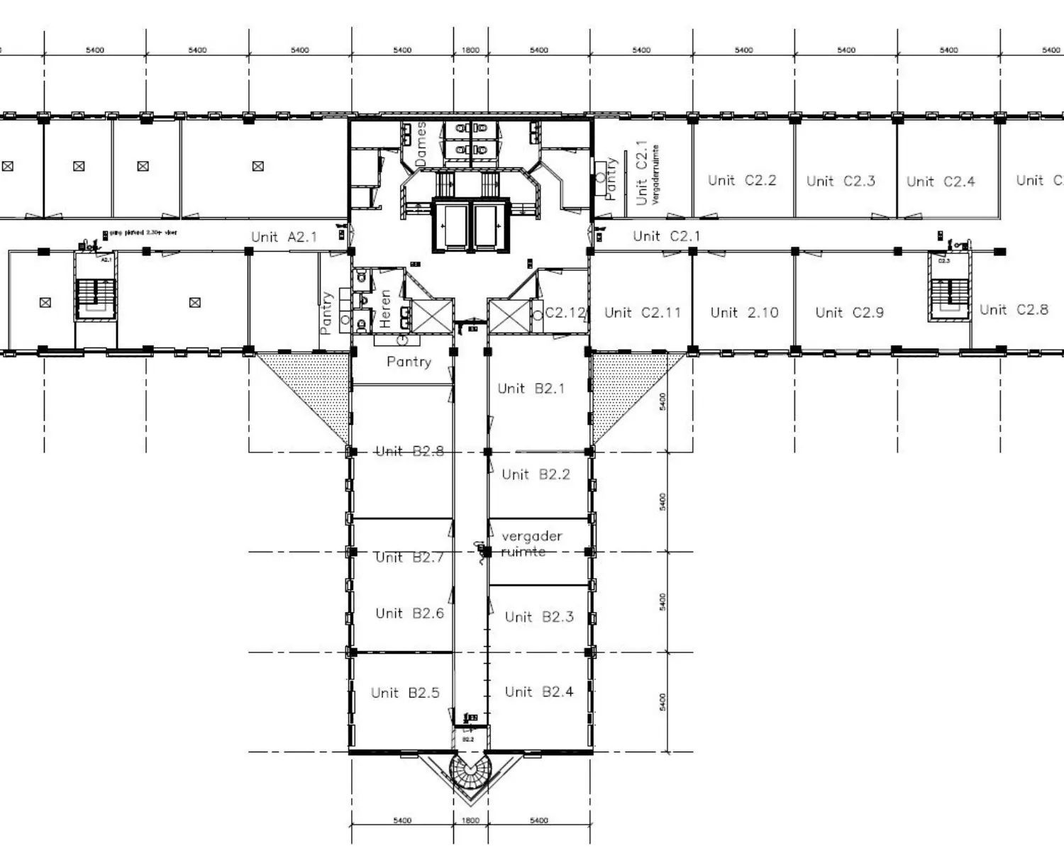
Representatieve kantoor- en/of showroomruimte gelegen op het bedrijvenpark “Kerkelanden” aan de Franciscusweg 219. Deze locatie wordt gekenmerkt door zowel bedrijfsgebouwen als kantoren. Het Kantoorgebouw Focus, heeft een bijzondere moderne en architectonische uitstraling.

Lees meer Lees meer

Kenmerken

Algemeen

Huurprijs € 327

Aanvaarding Direct

Bouw

Hoofdfunctie Kantoorruimte

Oppervlakten

Oppervlakte 300 m2 (in units vanaf 30 m2)

Plan een bezichtiging of stel een vraag