Facebook pixel head Hoofdweg The Hub 0, Rotterdam | Deze locatie huren?

Hoofdweg The Hub 0

Omschrijving

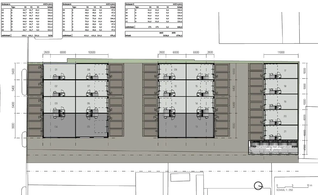
TE KOOP | 21 high-end bedrijfsunits met minimaal twee parkeerplaatsen gelegen op eigen grond!

Vanaf heden bieden wij aan 21 high-end bedrijfsunits in Rotterdam Alexander. Het project kent 3 type units, variërend tussen de ca. 97 m² en ca. 232 m². Enkele units zijn voorzien van New York stijl metselwerk en beschikken over een ruim dakterras op de tweede verdieping. De overige Hub-units zijn voorzien van stoer donker metselwerk en sandwichpanelen.

KENMERKEN
• Oppervlaktes variërend van ca. 97 m² tot 232 m² verdeeld over twee etages;
• Inclusief minimaal 2 eigen parkeerplaatsen;
• Gelegen op bedrijventerrein Prins Alexander;
• Goede ligging: units liggen direct aan de Hoofdweg en op steenworp afstand van de op- en afrit van de A16;
• Units zijn gelegen op eigen grond;
• Hoogwaardig en duurzaam;
• Vrij op naam (geen overdrachtsbelasting).

VERSCHILLENDE TYPE UNITS
Het project omvat drie verschillende type units.

TYPE U
– Praktische hoek- en tussenunit;
– Hoogwaardige en stoere uitstraling;
– Vanaf 97,2 m² met 2 eigen parkeerplaatsen;
– 3,60 meter vrije hoogte begane grond en 3 meter verdiepingshoogte;
– Elektrische overheaddeur;
– Vanaf EUR 225.000,- v.o.n. excl. BTW.

TYPE H
– Tussen- en hoekunit met ruime raampartijen;
– Zichtlocatie aan de doorgaande weg;
– Hoogwaardige uitstraling middels metselwerk in ‘New-York’ stijl;
– Een ruim eigen dakterras;
– Vanaf 156,6 m² met 2 eigen parkeerplaatsen;
– 3,60 meter vrije hoogte en 3 meter verdiepingshoogte;
– Vanaf EUR 390.000,- v.o.n. excl. BTW.

TYPE H+
– Kopunit met ruime raampartijen;
– Hoogwaardige uitstraling middels metselwerk in ‘New-York’ stijl;
– Een ruim eigen dakterras;
– Vanaf 196 m² over 3 etages met 3 eigen parkeerplaatsen;
– 3,60 meter vrije hoogte en 3 meter verdiepingshoogte;
– Vanaf EUR 460.000,- v.o.n. excl. BTW.

LOCATIE EN BEREIKBAARHEID
De locatie wordt gekenmerkt door haar optimale bereikbaarheid en ligging. Via de snelweg A20 en A16 bent u binnen enkele minuten onderweg richting Rotterdam, Dordrecht, Breda of zelfs Antwerpen. De ligging nabij de uitvalswegen maakt de locatie aantrekkelijk voor zowel lokaal als regionaal georiënteerde ondernemers.

Ook met het openbaar vervoer is deze locatie uitstekend bereikbaar. Op korte afstand zijn diverse bushaltes te vinden. Het intercitystation Rotterdam-Alexander ligt op ongeveer 15 minuten lopen.

Een ideale locatie om u als ondernemer te vestigen!

THE HUB – HET CONCEPT
Wij bieden high-end bedrijfsruimtes aan voor ondernemers. Voor ondernemers die net even wat anders willen. Die een visitekaartje willen afgeven en die waarde hechten aan een professionele uitstraling voor hun bedrijf.

Wij ontwikkelen en bouwen aan de huisvesting van de ondernemers van morgen. Die Nederland vooruit helpen en waar Nederland groot mee is geworden. Zo zijn we zelf ook. Met passie, een ondernemende instelling en door hard te werken. Met nuchter boerenverstand maar met oog voor detail en kwaliteit.

Omdat wij kwaliteit belangrijk vinden en achter ons product staan. Dit zie je terug in de herkenbare en high-end uitstraling van onze gebouwen.

Wij vinden het belangrijk dat we kwaliteit leveren, want kwaliteit houdt zijn waarde. Of u het nu koopt als ondernemer, of als belegger. In beide gevallen is het een verstandige, waardevaste en kwalitatief hoogwaardige keuze.

Wij gaan graag met u in gesprek om de huisvesting van u dromen te realiseren. Hopelijk zien wij u snel.

DISCLAIMER
Alle door de makelaars verstrekte informatie is geheel vrijblijvend en uitsluitend bestemd voor geadresseerde. Alle gegevens zijn met zorg samengesteld en uit ons inziens betrouwbare bron afkomstig. Ten aanzien van de juistheid ervan kunnen wij echter geen aansprakelijkheid aanvaarden.

Lees meer Lees meer

Kenmerken

Algemeen

Koopsom VRAAGPRIJS

Aanvaarding In overleg

Bouw

Hoofdfunctie Bedrijfsruimte

Bouwjaar 2026

Oppervlakten

Oppervlakte 196 m2 (in units vanaf 97 m2)

Plan een bezichtiging of stel een vraag