Facebook pixel head Mr. Treublaan 7, Amsterdam | Deze locatie huren?

Mr. Treublaan 7

Omschrijving

Het gebouw
The Cloud is een hoogwaardig en recent herontwikkeld kantoorgebouw op een toplocatie, op slechts enkele minuten lopen van Amsterdam Amstelstation en is in zijn totaliteit 24.000 m². Dankzij de directe OV-verbindingen en ruime ondergrondse parkeergarage is het gebouw uitstekend bereikbaar voor zowel medewerkers als bezoekers. Het hart van het gebouw wordt gevormd door een stijlvol atrium met toegang tot gedeelde faciliteiten zoals professionele vergaderruimtes, een dakterras en een moderne koffie/lunchbar – perfect voor informele overleggen en zakelijke ontmoetingen.

Binnen een exclusieve kantoorunit van circa 1.300 m² zijn twee huuropties beschikbaar op de 3e verdieping. U kunt kiezen voor een zelfstandige ruimte van circa 500 m², waarbij u gedeeld gebruik maakt van een volledig uitgeruste keuken en lunchruimte. De tweede optie is het huren van de volledige 1.300 m² kantoorruimte. Beide mogelijkheden bieden direct beschikbare, turn-key werkplekken in een moderne setting, met hoogwaardige afwerking en alle faciliteiten binnen handbereik zoals: een kleine auditorium, town-hall meeting rooms en een boardroom.

The Cloud combineert comfort, bereikbaarheid en uitstraling – de ideale kantooroplossing voor bedrijven die kwaliteit en locatie belangrijk vinden.

Buurt
Omval.

Beschikbaarheid
– Optie 1: Circa 500 m² turn-key kantoorruimte inclusief meubilair, gelegen op de 3e verdieping
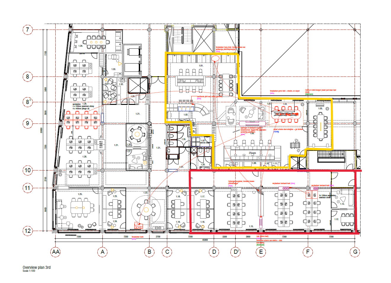
Het gaat om het rood gemarkeerde gedeelte op de plattegrond, aangevuld met een deel van het geel gemarkeerde gebied. Het rode gedeelte betreft een eigen unit, terwijl het gele deel een gedeelde ruimte omvat, waaronder een boardroom, keuken en presentatieruimte.

– Optie 2: De totale ruimte van circa 1.300 m² turn-key kantoorruimte inclusief meubilair, gelegen op de 3e verdieping
Deze optie is de volledige unit (de niet gemarkeerde ruimte + de geel en rood gemarkeerde zones).

Aantal parkeerplaatsen
In overleg kunnen er meerdere parkeerplaatsen gehuurd worden.

Bereikbaarheid per OV
De locatie is zeer goed bereikbaar met het openbaar vervoer. Op slechts enkele minuten loopafstand bevindt zich metrostation “Amstel”, waar zowel metro’s als treinen stoppen. Vanuit dit station zijn er directe verbindingen met metro 51 en 54 richting onder andere “Centraal Station” en “Station Zuid”. Ook vertrekken hier treinen richting Amsterdam Centraal, Utrecht en Schiphol, waardoor de locatie uitstekend verbonden is met zowel de stad als de rest van de Randstad. De locatie is uitstekend bereikbaar per auto. Mr. Treublaan 7 ligt direct aan de Gooiseweg (s112) en biedt snelle aansluiting op de Ringweg A10, via afrit S112. Vanaf hier zijn ook de A1 (richting Amersfoort), A2 (richting Utrecht) en A9 (richting Schiphol en Haarlem) eenvoudig bereikbaar.

Opleverniveau
De beschikbare kantoorruimte wordt opgeleverd in huidige hoogwaardige turn-key staat in combinatie met het aanwezige meubilair.

Faciliteiten
– Koffie en broodjes bar;
– Vergaderruimte;
– Hoogwaardige klimaatinstallaties;
– Compleet inbouwpakket;
– Dakterras en losse inventaris in bruikleen;
– Glasvezelaansluiting aanwezig.

Energie label
A+++.

Minimale huurtermijn
In overleg.

Huurprijs kantoorruimte
Vanaf € 350,- per m² per jaar.

Huurprijs parkeerplaatsen
€ 5.600 per parkeerplaats per jaar.

Voorschot servicekosten
€ 55,- per m² per jaar, te vermeerderen met BTW.

Aanvaarding
Per direct.

Lees meer Lees meer

Kenmerken

Algemeen

Huurprijs € 350 /m2/jaar

Servicekosten € 55 /m2/jaar

Aanvaarding Direct

Bouw

Hoofdfunctie Kantoorruimte

Bouwjaar 1984

Oppervlakten

Oppervlakte 1.300 m2 (in units vanaf 500 m2)

Indeling

Aantal bouwlagen 1 bouwlagen

Plan een bezichtiging of stel een vraag