Facebook pixel head Generaal Vetterstraat 76, Amsterdam | Deze locatie huren?

Generaal Vetterstraat 76

Omschrijving

De Generaal

In wat ooit een dependance was van de Gerrit Rietveld Academie, de gerenommeerde Nederlandse Hogeschool voor Beeldende Kunst en Vormgeving, hebben nu verschillende creatieve bedrijven hun thuis gevonden. Dit ruime en licht opgezette gebouw, ‘De Generaal’, bestaat uit vier verdiepingen en biedt daarnaast een inspirerende werkomgeving met veel hoogte en een open karakter.

De originele stalen kozijnen zijn behouden gebleven en de ramen zijn voorzien van dubbel glas. Hierdoor blijft het authentieke industriële karakter in stand, terwijl u profiteert van de voordelen van moderne bouwtechnieken. Licht stroomt door het hele pand en geeft volop ruimte aan nieuwe ideeën en concepten.

Het gebouw ligt direct aan het water en beschikt over een eigen aanlegsteiger, wat zorgt voor een unieke en aantrekkelijke locatie voor uw bedrijf.

Daarnaast wordt de entree op de begane grond binnenkort volledig gerenoveerd.

Beschikbaar
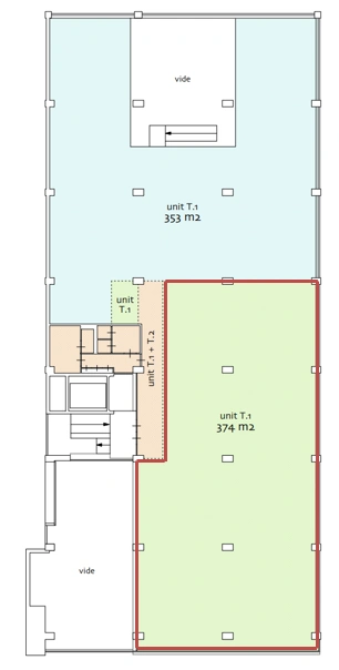
Voor de verhuur komt ca. 918,6 m² v.v.o. beschikbaar, als volgt verdeeld:
Begane grond ca. 191,7 m² v.v.o.
1e verdieping ca. 726,9 m² v.v.o.

Huurtermijn
5 jaar.

Aanvaarding
Per direct.

Huurprijs
€ 265,- m² VVO per jaar, excl. BTW.

Servicekosten
€ 53,- m² VVO per jaar, excl. BTW.

Parkeerkosten
€ 3.000,- per jaar, excl. BTW.

Bereikbaarheid

Per OV
Het Hoofddorpplein met verschillende tram- en bushaltes, is op loopafstand. Daarnaast is het Centraal Station makkelijk te bereiken met de metro via station Henk Sneevlietweg.

Per auto
De afslag S107 van de ringweg A10 is vlakbij De Generaal. Dit maakt dat het pand met de auto gemakkelijk te bereiken is.

Opleveringsniveau

– Volledig gerenoveerde kantoorruimte inc. keuken
– Indrukwekkende entree met eigen karakter
– Toegang tot de verdiepingen via een industriële lift
– Vrije hoogte van circa 4 meter
– Luchtbehandelingssysteem in het zicht
– Baffels (geluiddempende platen)
– Verlichtingsarmaturen/led
– Betonlook gietvloer
– Originele stalen kozijnen voorzien van dubbelglas

Lees meer Lees meer

Kenmerken

Algemeen

Huurprijs € 265 /m2/jaar

Servicekosten € 53 /m2/jaar

Aanvaarding Direct

Bouw

Hoofdfunctie Kantoorruimte

Bouwjaar 1956

Oppervlakten

Oppervlakte 919 m2 (in units vanaf 192 m2)

Indeling

Aantal bouwlagen 2 bouwlagen

Plan een bezichtiging of stel een vraag