Facebook pixel head Prof. Tulpstraat 18, Amsterdam | Deze locatie huren?

Prof. Tulpstraat 18

Omschrijving

OBJECT

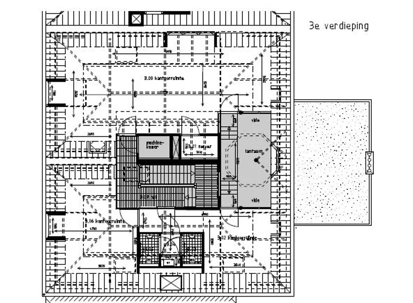
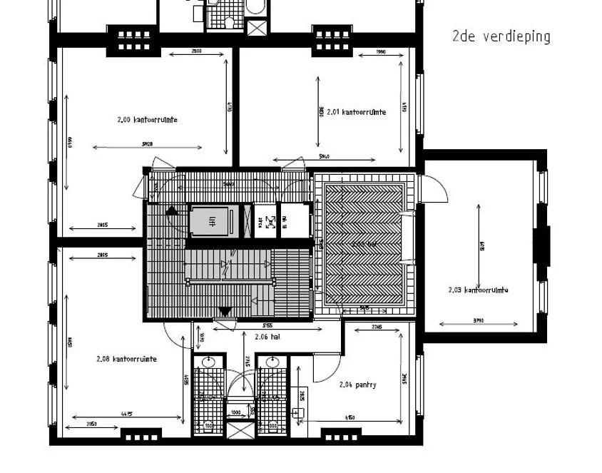
De kantoorruimte is gelegen in een rustige straat, op de tweede en derde verdieping van twee gekoppelde karakteristieke objecten op de grens van Amsterdam-Oost, Centrum en De Pijp.
Voor verhuur is ca. 285 m² volledig turn-key beschikbaar, verdeeld over verschillende ruimtes. Er is een lift aanwezig en door de brede gevel met ruime hoeveelheid ramen is er veel daglichttoetreding.
Op het Weesperplein zijn veel OV-mogelijkheden en het Amstel Hotel, Koninklijk Theater Carré, Café Lempicka en Restaurant De Ysbreeker zijn op loopafstand.

Vloeroppervlakte
Voor de verhuur is momenteel ca. 285 m² kantoorruimte beschikbaar op de 2e en 3e verdieping.

Huurprijs
€ 275,- per m² per jaar exclusief BTW.

Servicekosten
€ 35,- per m² per jaar exclusief BTW.

Oplevering
In huidige turn-key staat.

Aanvaarding
Per direct.

Lees meer Lees meer

Kenmerken

Algemeen

Huurprijs € 275 /m2/jaar

Servicekosten € 35 /m2/jaar

Aanvaarding Direct

Bouw

Hoofdfunctie Kantoorruimte

Oppervlakten

Oppervlakte 285 m2 (in units vanaf 285 m2)

Indeling

Aantal bouwlagen 2 bouwlagen

Plan een bezichtiging of stel een vraag